GÄSSLI5
Ort: Grabs, Schweiz
Jahr: 2021 - 2025
Status: Rohbau
Programm: Privates Haus
Fläche: 80 + 250 + 250 + 80 M2
Fotografie: Rory Gardiner
Text ↓
Ort: Grabs, Schweiz
Jahr: 2021 - 2025
Status: Rohbau
Programm: Privates Haus
Fläche: 80 + 250 + 250 + 80 M2
Fotografie: Rory Gardiner
Text ↓
















































GÄSSLI5 - HAUSVERSCHIEBUNG UND STAMPFLEHMBAU | GRABS, SWITZERLAND | 2021-2025
Verschiebung eines Blockbaus aus dem 17. Jahrhundert &
Neubau Stampflehmbau
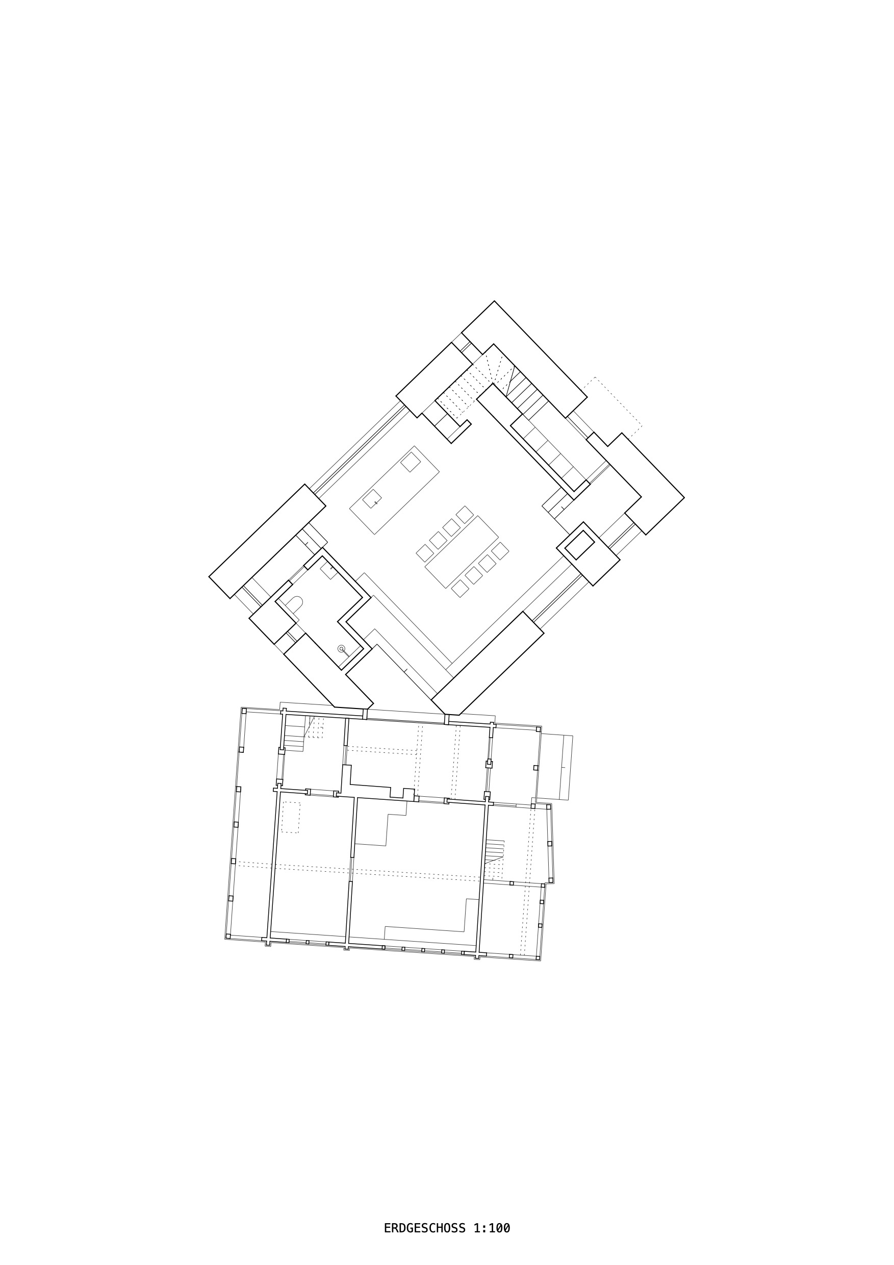
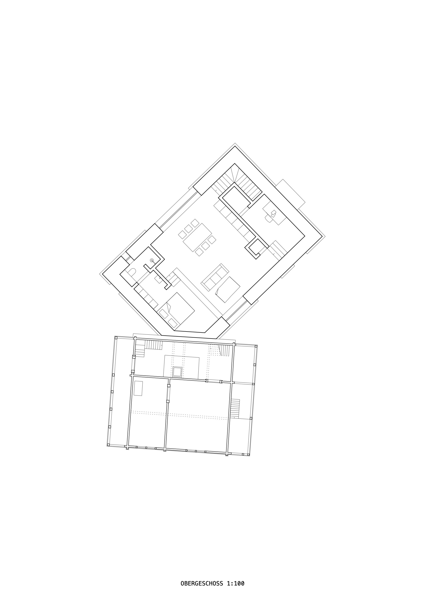
Das Projekt Gässli5 untersucht, wie kreislaufgerechtes Bauen in einem konkreten architektonischen Kontext umgesetzt werden kann. Die Wiederverwendung der historischen Bausubstanz erfolgte durch eine vollständige Demontage und den Wiederaufbau am neuen Standort im Dorf. Ergänzt wird der Altbau durch einen Neubau aus Stampflehm, ein Haus, das vollständig aus natürlichen Baumaterialien besteht, rezyklierbar ist und am Ende seines Lebenszyklus vor Ort in den Kreislauf der Natur zurückgeführt werden kann.
Das Gässlihaus ist eines der ältesten und wenigen weitgehend original erhaltenen Häuser in der Region Werdenberg. Vor einigen Jahren wurde es aus der Schutzverordnung entlassen und war vom Abbruch bedroht. Die letzte Möglichkeit zur Weiternutzung bestand darin, das Gebäude zu verschieben. Fehlende oder beschädigte Teile des Strickbaus wurden aus anderen Abbruchobjekten im Dorf gewonnen, eine Weiterführung der lokalen Baugeschichte im Sinne des zirkulären Bauens. Der Strickbau wurde in seiner materiellen und räumlichen Einfachheit belassen; auf technische Eingriffe wie Dämmung, Wasser- oder Elektroinstallationen wurde bewusst verzichtet.
Um den Altbau in seiner ursprünglichen Erscheinung zu bewahren und dennoch eine zeitgemässe Nutzung zu ermöglichen, wird er durch einen Neubau ergänzt. Während der Altbau mit seiner Hauptfassade wieder nach Süden zur Strasse ausgerichtet ist, wurde der Neubau leicht abgedreht, um einen Ankunftsort zu schaffen und den Blick in den Garten zu öffnen. Über einen niedrigeren Zwischenraum sind die beiden Volumen miteinander verbunden, wodurch eine neue, eigenständige Figur entsteht.
Der Anbau besteht aus einem massiven, tragenden Wandaufbau aus Stampflehm. Die Vor- und Rücksprünge der Fassade thematisieren die Herstellung der rund 200 Lehmelemente; die sichtbare Schichtung dokumentiert den Produktionsprozess. Die Decken bestehen aus unverleimten Holzbalken. Eine innere Schicht aus Hanfkalk dient der Wärmedämmung, während Kalkputz aus rezykliertem Ziegelmehl die Innenräume prägt. Der Boden aus lokalem Stampflehm, rohem Eichenholz und Tonplatten folgt dem Prinzip der sortenreinen Trennung. Das neue Haus ist aus nachwachsenden Rohstoffen gebaut, eine bewusste Reduktion auf das einfache Bauen mit Fokus auf die Rezyklierbarkeit der Materialien. Das Gebäude kann vollständig in den Stoffkreislauf zurückgeführt werden, ein Haus fast ohne Abfall.
Die räumliche Organisation gliedert sich in einen nutzungsoffenen Raum im Erdgeschoss und eine kompakte Wohnung im Obergeschoss. Diese Verbindung erlaubt eine flexible Nutzung als Vereinshaus, Wohnraum oder Werkstatt. Der Strickbau bleibt ungedämmt und kann in unterschiedlicher Konfiguration mit dem Neubau als Drei-Jahreszeiten-Haus genutzt werden.
Der Neubau ist Teil eines neu angelegten Permakulturgartens, dessen Struktur aus essbaren Pflanzen, Teichen und Trockenbereichen eine ökologische wie soziale Erweiterung des Bauwerks bildet. Das Regenwasser sowie eine Trockentoilette werden auf dem Grundstück verarbeitet. In der Summe entsteht ein Ensemble, das Materialkreisläufe, Ortsbezug und gemeinschaftliches Handeln als integrale Bestandteile architektonischer Haltung formuliert. In der Gegenüberstellung des leichten, gefügten Holzbaus und des schweren, monolithischen Lehms entsteht eine Dualität, die weniger auf Kontrast als auf Ergänzung beruht.
Dieses Projekt verstehen wir als ein Statement gegen den heutigen Abrisswahn, als ein Zeichen gegen die Verschwendung in der Baubranche und als Plädoyer für die Wiederverwertbarkeit alter Bausubstanz. Für unser junges Büro dient dieses Projekt als Experiment, die Grenzen der gängigen Normen zu verschieben, ein Zeichen zu setzen und gleichzeitig das Konzept der Suffizienz neu zu denken.
Das Projekt Gässli5 untersucht, wie kreislaufgerechtes Bauen in einem konkreten architektonischen Kontext umgesetzt werden kann. Die Wiederverwendung der historischen Bausubstanz erfolgte durch eine vollständige Demontage und den Wiederaufbau am neuen Standort im Dorf. Ergänzt wird der Altbau durch einen Neubau aus Stampflehm, ein Haus, das vollständig aus natürlichen Baumaterialien besteht, rezyklierbar ist und am Ende seines Lebenszyklus vor Ort in den Kreislauf der Natur zurückgeführt werden kann.
Das Gässlihaus ist eines der ältesten und wenigen weitgehend original erhaltenen Häuser in der Region Werdenberg. Vor einigen Jahren wurde es aus der Schutzverordnung entlassen und war vom Abbruch bedroht. Die letzte Möglichkeit zur Weiternutzung bestand darin, das Gebäude zu verschieben. Fehlende oder beschädigte Teile des Strickbaus wurden aus anderen Abbruchobjekten im Dorf gewonnen, eine Weiterführung der lokalen Baugeschichte im Sinne des zirkulären Bauens. Der Strickbau wurde in seiner materiellen und räumlichen Einfachheit belassen; auf technische Eingriffe wie Dämmung, Wasser- oder Elektroinstallationen wurde bewusst verzichtet.
Um den Altbau in seiner ursprünglichen Erscheinung zu bewahren und dennoch eine zeitgemässe Nutzung zu ermöglichen, wird er durch einen Neubau ergänzt. Während der Altbau mit seiner Hauptfassade wieder nach Süden zur Strasse ausgerichtet ist, wurde der Neubau leicht abgedreht, um einen Ankunftsort zu schaffen und den Blick in den Garten zu öffnen. Über einen niedrigeren Zwischenraum sind die beiden Volumen miteinander verbunden, wodurch eine neue, eigenständige Figur entsteht.
Der Anbau besteht aus einem massiven, tragenden Wandaufbau aus Stampflehm. Die Vor- und Rücksprünge der Fassade thematisieren die Herstellung der rund 200 Lehmelemente; die sichtbare Schichtung dokumentiert den Produktionsprozess. Die Decken bestehen aus unverleimten Holzbalken. Eine innere Schicht aus Hanfkalk dient der Wärmedämmung, während Kalkputz aus rezykliertem Ziegelmehl die Innenräume prägt. Der Boden aus lokalem Stampflehm, rohem Eichenholz und Tonplatten folgt dem Prinzip der sortenreinen Trennung. Das neue Haus ist aus nachwachsenden Rohstoffen gebaut, eine bewusste Reduktion auf das einfache Bauen mit Fokus auf die Rezyklierbarkeit der Materialien. Das Gebäude kann vollständig in den Stoffkreislauf zurückgeführt werden, ein Haus fast ohne Abfall.
Die räumliche Organisation gliedert sich in einen nutzungsoffenen Raum im Erdgeschoss und eine kompakte Wohnung im Obergeschoss. Diese Verbindung erlaubt eine flexible Nutzung als Vereinshaus, Wohnraum oder Werkstatt. Der Strickbau bleibt ungedämmt und kann in unterschiedlicher Konfiguration mit dem Neubau als Drei-Jahreszeiten-Haus genutzt werden.
Der Neubau ist Teil eines neu angelegten Permakulturgartens, dessen Struktur aus essbaren Pflanzen, Teichen und Trockenbereichen eine ökologische wie soziale Erweiterung des Bauwerks bildet. Das Regenwasser sowie eine Trockentoilette werden auf dem Grundstück verarbeitet. In der Summe entsteht ein Ensemble, das Materialkreisläufe, Ortsbezug und gemeinschaftliches Handeln als integrale Bestandteile architektonischer Haltung formuliert. In der Gegenüberstellung des leichten, gefügten Holzbaus und des schweren, monolithischen Lehms entsteht eine Dualität, die weniger auf Kontrast als auf Ergänzung beruht.
Dieses Projekt verstehen wir als ein Statement gegen den heutigen Abrisswahn, als ein Zeichen gegen die Verschwendung in der Baubranche und als Plädoyer für die Wiederverwertbarkeit alter Bausubstanz. Für unser junges Büro dient dieses Projekt als Experiment, die Grenzen der gängigen Normen zu verschieben, ein Zeichen zu setzen und gleichzeitig das Konzept der Suffizienz neu zu denken.